Проем может иметь любую форму.

Рекомендуется монтировать роллеты на вертикальную поверхность, однако допускается отклонение ±5° от вертикали (или 85 мм на 1 м).
В области монтажа должны отсутствовать элементы, которые могут помешать монтажу, например, трубы, воздуховоды, светильники, кондиционеры и т.д.
В местах крепежа должно быть прочное основание. В стене должны отсутствовать коммуникации, которые могут быть повреждены при засверловке.
При выводе через стену элементов управления (ленточного, шнурового, кордового, редукторного приводов или системы аварийного открывания) в стене в месте вывода должны отсутствовать коммуникации, которые могут быть повреждены. С обратной стороны стены не должно быть деталей, препятствующих работе выводимых элементов управления.

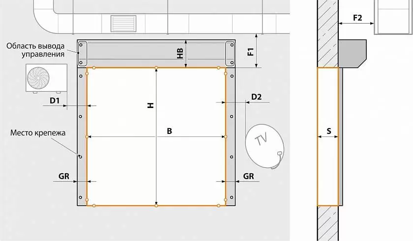
При замере проема необходимо измерить его высоту (H) и ширину (B) в трех точках – по краям и в середине. За расчетное принимается большее значение. Если при закрытии нижний профиль роллетного полотна будет опираться на оконный отлив, то высоту проема необходимо измерять от отлива.
Если вокруг проема есть препятствия, которые могут помешать монтажу, измерьте расстояние до них (D1, D2, F1 и F2). D1 и D2 должны быть не менее ширины шины направляющей (GR) + 5 мм. F1 – не менее типоразмера короба (НВ) + 10 мм. F2 – не менее типоразмера короба (НВ) + 100 мм.
В случае непрочного основания рекомендуется дополнительно увеличить измеренную ширину проема (В) на 50 мм. Это позволит крепить направляющие шины дальше от края откоса и снизит шанс его откалывания в процессе монтажа и эксплуатации роллетной системы. В этом случае размеры D1 и D2 должны быть не менее ширины шины направляющей (GR) + 30 мм.

Также следует учесть, что часть концевого профиля не входит в область короба и свисает в проем. Для исключения этого можно увеличить измеренную высоту проема (Н) на высоту профиля концевого. В этом случае размер F1 должен быть не менее типоразмера короба (НВ) + высота профиля концевого + 10 мм.
В случае вывода через стену элементов управления (петли аварийного открывания электродвигателя, предохранительной пружины и т.д.) необходимо замерить толщину стены (S).
Вопросы и ответы
- Сколько в среднем служат рольставни?
Рольставни от производителя «АЛЮТЕХ» служат в среднем 7 лет. Этого удалось достичь благодаря использованию:
- алюминиевых профилей, которые превосходят по антикоррозийным свойствам профили из других материалов (стали, пластика, древесины);
- устойчивого к истиранию покрытия;
- надежных комплектующих.
- Хотим поставить роллеты в дачный домик. Не проржавеют ли они за зиму под воздействием осадков?Рольставни «АЛЮТЕХ» изготовлены из алюминия. Поэтому они не подвержены влиянию атмосферных осадков, коррозии, перепадам температур, а также обладают высокой устойчивостью к взлому.
- Могу ли я сам снять мерки для изготовления роллет? Если да, то какие?
Мы не рекомендуем измерять параметры самостоятельно, чтобы при установке не возникло проблем. Ведь недостаточно просто измерить высоту, ширину и глубину проема, в который будут устанавливаться рольставни. В зависимости от варианта монтажа (накладной, встроенный или комбинированный) мерки снимаются по-разному.
Доверьте замер профессионалам. Мастер измерит проем и учтет его особенности. На основе полученных данных подберет подходящие типоразмеры роллетного профиля и комплектующих.
Для записи на замер звоните: +998 (78) 555-07-57.
- Когда лучше устанавливать рольставни на окна: на этапе строительства или после его завершения?Если вы выбрали роллеты со скрытым коробом, то их установку нужно запланировать на этапе строительства. На фасаде требуется заранее подготовить нишу для короба, а сделать это в готовом доме будет проблематично.
Рольставни с любым другим типом короба (20- или 45-градусным, круглым или полукруглым) можно устанавливать на любом этапе, даже после капремонта. - У меня установлены роллеты с ручным управлением (ленточный привод). Могу ли я их автоматизировать?
Да, можете. Вам необходимо только выбрать подходящий вариант:
- Проводное управление. Для его установки необходимо будет протянуть кабель, но при использовании пульта ДУ прокладывать кабель не придется.
- Радиоуправление с помощью датчиков.
- Умный дом ALUTECH Smart.
О возможностях автоматического управления проконсультируйтесь с нашими менеджерами.
- Что делать если роллеты на окнах примерзли?
Если обледенели ламели, по ним можно слегка постучать, чтобы раскрошить ледяную корку. Постукивания должны быть легкими, иначе есть риск повредить ламели или их декоративное покрытие.
Если вы находитесь внутри помещения, можно попытаться прогреть обледеневшие ламели промышленным феном, направляя поток теплого воздуха на полотно.
Если эти способы не помогли, необходимо вызвать мастера.
Важно: не применяйте силу и не включайте автоматический привод. Это может сломать механизм и повредить полотно. Также не стоит поливать замерзшие рольставни горячей водой.

