Типовой пример автоматизации объекта выглядит следующим образом:

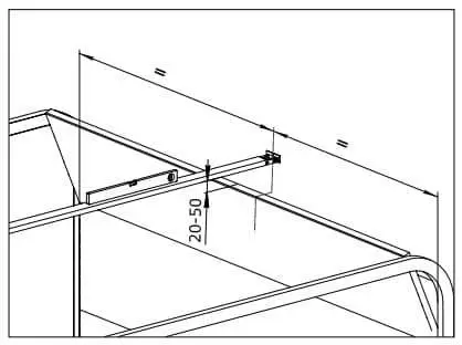
Линия монтажа приводной рейки проходит посередине секционных ворот. Если монтаж не может быть выполнен посередине ворот, то допускается монтаж на расстоянии не более 100 мм слева или справа от середины ворот. Соответственно, необходимо планировать место для монтажа рейки и привода в соответствии с их габаритами.
необходимое пространство для монтажа, мм | |
Привод LG + рейка LGR-3300С(B) | 3650 |
Привод LG + рейка LGR-3600С(B) | 3950 |
Привод LG + рейка LGR-4200C(B) | 4550 |
ASG600/3KIT-L (рейка в комплекте) | 3700 |
ASG1000/3KIT-L (рейка в комплекте) | 3700 |
ASG1000/4KIT (рейка в комплекте) | 4400 |
Зазор между рейкой и максимальной (верхней) точкой движения полотна ворот должен быть 20-50 мм.

Крепления в комплекте автоматики для секционных ворот обеспечивают расстояние от рейки до потолка до 110 мм, в случае большего расстояния необходимо применить дополнительные полосы крепления (не входят в комплект).
Максимальное расстояние от верхней точки движения ворот до потолка должно быть не более 190 мм.
Вопросы и ответы
- Какие дополнительные аксессуары я могу заказать вместе с гаражными воротами?
Для роллетных ворот мы предлагаем следующие опции:
- Система блокировки аварийного открывания S-NHK.
- Ручной привод для аварийного подъема.
- Система безопасности «Чувствительный край».
- Инерционный тормоз.
- Фотоэлементы «Twin-Safe».
- Подвижные каретки.
Для секционных ворот:
- Калитка.
- Устройство экстренного открывания дверей.
- Замок ригельный.
- Система защиты от взлома.
- Блок ручного подъема ворот.
- Редуктор цепной.
- Механизм разблокировки электропривода.
- Окна.
- Решетки.
- Вставки декоративные.
- Ручка двухсторонняя и т.д.
- Как часто должно проводиться сервисное обслуживание гаражных ворот?
Регулярное сервисное обслуживание является залогом долгой и безотказной работы воротных конструкций. Оно позволяет сэкономить средства на ремонте.
Мы рекомендуем проводить плановое сервисное обслуживание секционных ворот 1 раз в полгода. Роллетных ворот – 1 раз в год. Или чаще, если изделие эксплуатируется в помещениях с повышенной запыленностью, под длительным воздействием очень высоких/низких температур.
- Можно ли установить ворота в гараже без верхней и боковых перемычек?
Да, в этом случае будет произведен встроенный монтаж. Он позволит сэкономить на строительных работах и быстро ввести гараж в эксплуатацию.
Обязательно сообщите менеджеру о необходимости встроенного монтажа при оформлении заказа.
Дополнительные преимущества данного вида установки:
Привлекательный вид ворот благодаря использованию декоративных наличников, которые окрашиваются в любой цвет RAL и обладают высокой стойкостью к коррозии.
Надежное крепление рамы ворот даже при неровностях боковых стен. Такой эффект достигается благодаря регулируемым монтажным кронштейнам.
- Как измерить проем?
Перед замером следует определить нулевую отметку пола. В идеале устанавливать ворота в проем с уже готовым полом. Замер параметров необходимо производить с внутренней стороны помещения, т.к. с этой стороны будут монтироваться ворота.
Измерьте высоту в 3 точках: крайней левой, крайней правой и посередине. Аналогично измерьте ширину в 3 точках: крайней верхней, крайней нижней и посередине. При заказе ворот указывайте максимальные значения: сначала ширину в мм, затем высоту в мм.
Измерьте перемычку: в крайней левой, крайней правой и центральной точках. Затем — боковых пристенков: в крайней верхней, крайней нижней и центральной точках. При заказе ворот укажите наименьшие значения этих параметров.
Важно: для установки ворот необходимо не менее 100 мм в зоне перемычки (оптимально — 210 мм) и не менее 125 мм в зоне боковых пристенков. В этих зонах не должно быть систем вентиляции, водоснабжения или отопления. Если полученные значения меньше минимальных, сообщите об этом при заказе ворот.

